Main Content

9 Parker Avenue Ancaster, ON L9G 1A6
Sold

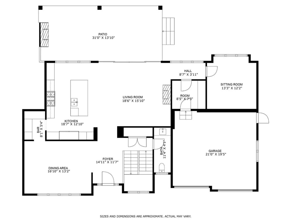
This NEVER before lived in, custom residence built by Exquisite Living Homes, is ready for its first owner! Introducing an extraordinary masterpiece nestled within Ancaster's Oakhill neighborhood, where timeless farmhouse charm harmoniously meets contemporary luxury. It seamlessly combines elements of stone, metal, low-maintenance siding, and natural wood to create a striking exterior. As you step inside, you'll be welcomed by a spacious floor plan that encompasses nearly 5000 square feet of finished space across three levels, thoughtfully designed with families in mind.

The interior is adorned with opulent features such as lofty ceilings, custom wall paneling, three enchanting fireplaces, and a fully finished basement complete with in-floor radiant heating. The pièce de résistance is the chef-inspired kitchen, a true culinary haven. It boasts exquisite two-toned cabinetry, elegant open shelving, top-of-the-line Thermador appliances, and stunning quartz countertops that will inspire your culinary creations. The seamless transition from indoors to outdoors invites you to embrace the natural surroundings, while a covered porch sets the perfect stage for hosting memorable gatherings. Rest assured, this home is constructed by a Tarion registered builder, ensuring the highest quality craftsmanship and peace of mind while the price is inclusive of HST. Contact us today to schedule your private viewing and witness this remarkable property in person!

$2,500,000 Sale Price
5 Beds
5 Baths
3369 sq. ft
This Property is Sold Interested in similar properties like this one?

    Newsletter Popup Form